


CFÐ͵¥·¨À¼ËÉÌ×´«Á¦½ÓÍ·ÐÔÄÜÌØµã£º
ËÉÌ×´«Á¦½ÓÍ·ÊÇÔÚ·¨À¼ËÉÌײ¹³¥½ÓÍ·µÄ»ù´¡ÉÏÔöÉè·¨À¼¶Ì¹Ü¼°´«Á¦Âݸ˶ø³É£¬´ÎÀàÐ͵IJ¹³¥½ÓÍ·ÓëËÉÌײ¹³¥½ÓÍ·ºÍËÉÌ×ÏÞλ²¹³¥½ÓÍ·²»Í¬µÄÊÇËüµÄ²¹³¥Á¿ÊÇÖ¸ÔÚ°²×°¼°²ðж¹ý³ÌÖеĵ÷½ÚÁ¿£¬Ò»µ©½«ËùÓеÄÂÝĸš½ô£¬ËüÊǸÕÐÔÁ¬½ÓµÄ£¬¿ÉÒÔ´«µÝÖáÐÄÁ¦£¬´Ó¶ø±£»¤·§ÃÅ¡¢±ÃµÈÉ豸¡£
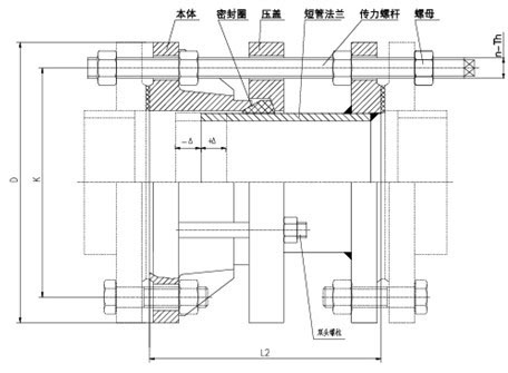
´«Á¦½ÓÍ·ÊDZᢷ§ÃŵÈÉ豸Óë¹ÜµÀÁ¬½ÓµÄвúÆ·£¬Í¨¹ýÈ«ÂÝ˨°Ñ
ËüÃÇÁ¬½ÓÆðÀ´£¬Ê¹Æä³ÉΪһ¸öÕûÌ壬²¢ÓÐÒ»¶¨µÄÎ»ÒÆÁ¿£¬ÕâÑù¾Í¿ÉÒÔÔÚ°²×°Î¬ÐÞʱ£¬¸ù¾ÝÏÖ³¡°²×°³ß´ç½øÐе÷Õû£¬ÔÚ¹¤×÷ʱ£¬¿ÉÒÔ°ÑÖáÏòÍÆÁ¦´«»¹ÖÁÕû¸ö¹ÜµÀ¡£ÕâÑù²»½öÌá¸ß¹¤×÷ЧÂÊ£¬¶øÇжԱᢷ§ÃǵÈÉ豸Æðµ½Ò»¶¨±£»¤×÷Óá£
CFÐ͵¥·¨À¼ËÉÌ×´«Á¦½ÓÍ·ÊÇÓÐËÉÌ×ÉìËõ½ÓÍ·ºÍ¶Ì¹Ü·¨À¼¡¢´«Á¦Âݸ˵ȹ¹¼þ×é³É£¬ËüÄÜ´«µÝ±»Á¬½Ó¼þµÄѹÁ¦ÍÆÁ¦£¨Ã¤°åÁ¦£©ºÍ²¹³¥¹Ü·Îó²î£¬²»ÄÜÎüÊÕÖáÏòÎ»ÒÆ¡£ÖØÒªÓÃÓڱᢷ§ÃÅ¡¢¹Ü·µÈ¸½¼þµÄËÉÌ×Á¬½Ó¡£
CFÐ͵¥·¨À¼ËÉÌ×´«Á¦½ÓÍ·Óŵ㣺
1.°²×°¼òµ¥·½±ã¡¢·½±ã·§ÃŰ²×°¡¢¿É³ÐÊܹÜÏßµÄÖáÏòÀÁ¦¡£
2.¸Ã²úÆ·²ÉÓýðÊôÖýÔì»ò×é³É£¬ËÉÌײ¿Î»Ñ¡ÓÃÌÝÐÎÏð½ºÃÜ·âȦ£¬ÔÚѹ¸ÇºÍÂÝ˨µÄ×÷ÓÃÏ¡£
3.ÀûÓÃÏð½ºÑ¹Ëõµ¯ÐÔ±äÐÎÔÀí¡£ÆÈʹÃÜ·âȦ±äÐÎÓÚ½ÓÍ·±¾ÌåÉìËõ¹ÜÍâ±ÚÖ®¼ä½øÐо²ÃÜ·â¡£
4.½ðÊôºÍÃÜ·âȦÑϸñ°´Ê¹ÓÃÐÔÄܼ°Óû§ÒªÇóÑ¡ÓᣲÄÖÊÍⲿͿװ¶È·À¸¯ÆáÁÏ£¬¸÷²¿Á¬½ÓÂÝ˨Ϊ¶È̼¸Ö»ò²»Ðâ¸ÖÖÆ×÷¡£ÒòΪ±¾ÌåÓëÉìËõ¹ÜÖ®¼äÓÐÒ»¶¨¼ä϶£¬Ê¹Ëü¾ßÓÐÒ»¶¨µÄÖáÏòºÍ¾¶ÏòÎ»ÒÆ¡£
5.ÔڹܵÀÖÐÄܵIJ¹³¥ºÍ¹ÜµÀºÍä°åÍÆÁ¦£¬ÓÖÄܱãÓÚË®±Ã£¬·§ÃŵݲװάÐÞ¸ü»»£¬ÊµÎª¹ÜµÀ°²×°ÔËÐÐÒµÖÐÀíÏëµÄÅäÌײúÆ·¡£
CFÐ͵¥·¨À¼ËÉÌ×´«Á¦½ÓͷʹÓ÷¶Î§£º
1.ÒòΪ¸ÃϵÁвúÆ·Êô½ðÊôÖÆÔìÆ·£¬ÆäÓнϸߵĿ¹ÀºÍ¿¹Ñ¹Ç¿¶È£¬ÈíÃÜ·âÐÔÄÜÓÅÔ½£¬×°Ð¶·½±ãµÈ¹¦ÄÜ£¬³£±»Ó¦ÓÃÓÚµçÁ¦£¬Ò±½ð¡£
2.¸øÅÅË®ºÍÎÛË®´¦ÀíµÈÐÐÒµ£¬Ö÷Òª×÷ÓÃÓÚË®±ÃÓë·§Ãź͹ܵÀÖ®¼äµÄÁ¬½Ó¡£
3.ËüÔڹܵÀÔËÐÐÖÐÓÐÒ»¶¨µÄ¶àÏòÎ»ÒÆ×÷Ó㬿ÉÒԹܵÀÔËÐÐÖеÄä°åÍÆÁ¦£¬¶Ô¹ÜµÀÆðµ½Ò»¶¨±£»¤×÷Óã¬ÌرðÊǶԹܵÀµÄ°²×°ºÍάÐÞÌṩÁ˼«´óµÄ±ãÀû£¬µ«ÊÇÔÚË®±Ã³ö¿Ú´¦ºÍ¹ÜµÀת½Ç´¦Ó¦²ÉÓô«Á¦½ÓÍ·£¬ÒòΪ´«Á¦½Óͷͨ¹ý´«Á¦ÂÝ˨£¨¼´È«Ë¿ÂÝ˨£©ÄÜ°ÑÆô±ÃʱµÄä°åÍÆÁ¦´«µ¼µ½±ÃºÍ¹ÜµÀ¸÷²¿Î»£¬±ÜÃâÍÆÁ¦¼¯ÖÐÓڹܵÀ»ò±ÃµÄ½ü¶Ë·¢Éú³å»÷Á¦ËðÉËÉ豸¡£
CFÐ͵¥·¨À¼ËÉÌ×´«Á¦½ÓÍ·ÊÊÓÃÓÚÒ»ÕâÓë·¨À¼Á¬½Ó£¬Ò»ÕâÓë¹ÜµÀ¡£°²×°Ê±µ÷½Ú²úÆ·Á½¶ËÓë¹ÜµÀ»ò·¨À¼µÄ°²×°³¤¶È£¬°²×°ºÍÍê±Ïºó£¬¶Ô½ÇÒÀ´Î¾ùÔÈÅ¡½ôѹ¸ÇÂÝ˨£¬Ê¹Æä³ÉΪһ¸öÕûÌ壬²¢ÓÐÒ»¶¨µÄÎ»ÒÆÁ¿£¬·½±ã°²×°Î¬ÐÞʱ£¬¸ù¾ÝÏÖ³¡³ß´ç½øÉúµ÷Õû¡£ÔÚ¹¤×÷ʱ¿ÉÒÔ°ÑÖáÏòÍÆÁ¦´«µÝÖÁÕû¸ö¹ÜµÀ¡£
CFÐ͵¥·¨À¼ËÉÌ×´«Á¦½ÓÍ·°²×°¼òҪ˵Ã÷£º
CFÐ͵¥·¨À¼ËÉÌ×´«Á¦½ÓÍ·ÊÊÓÃÓÚÒ»ÕâÓë·¨À¼Á¬½Ó£¬Ò»ÕâÓë¹ÜµÀ¡£°²×°Ê±µ÷½Ú²úÆ·Á½¶ËÓë¹ÜµÀ»ò·¨À¼µÄ°²×°³¤¶È£¬°²×°ºÍÍê±Ïºó£¬¶Ô½ÇÒÀ´Î¾ùÔÈÅ¡½ôѹ¸ÇÂÝ˨£¬Ê¹Æä³ÉΪһ¸öÕûÌ壬²¢ÓÐÒ»¶¨µÄÎ»ÒÆÁ¿£¬·½±ã°²×°Î¬ÐÞʱ£¬¸ù¾ÝÏÖ³¡³ß´ç½øÉúµ÷Õû¡£ÔÚ¹¤×÷ʱ¿ÉÒÔ°ÑÖáÏòÍÆÁ¦´«µÝÖÁÕû¸ö¹ÜµÀ¡£
¼¼Êõ²ÎÊý£º
¹«³ÆÍ¨¾£ºDN50-DN3200
¹¤×÷ѹÁ¦£º0.6-1.6MPA
ʹÓýéÖÊ£ºË®¡¢ÎÛË®
ÃÜ·â²ÄÁÏ£ºNBR
ÖÆÔì±ê×¼£ºGB12465-2007
| ÐòºÅ | Ãû³Æ | ÊýÁ¿ | ²ÄÁÏ |
| 1 |
±¾Ìå
|
1
|
QT400-15¡¢Q235A¡¢ZG230-450¡¢20
|
| 2 |
ÃÜ·âȦ
|
1
|
NBR
|
| 3 |
ѹ¸Ç
|
1
|
QT400-15¡¢Q235A¡¢ZG230-450¡¢20
|
| 4 |
¶Ì¹Ü·¨À¼
|
1
|
Q235A¡¢20¡¢16Mn
|
| 5 |
ÂÝÖù
|
n
|
Q235A¡¢35¡¢1Cr18Ni9Ti
|
| 6 |
ÂÝĸ
|
5n
|
Q235A¡¢20¡¢1Cr18Ni9Ti
|
|
¹«³ÆÍ¨¾¶DN |
¹Ü×ÓÍâ¾¶ |
ÍâÐγߴç |
·¨ À¼ Á¬ ½Ó ³ß ´ç |
|||||||||
|
L |
¡÷L |
0.6MPa |
1.0MPa |
|||||||||
|
Dw
|
|
D |
D1 |
n-Th |
b |
D |
D1 |
n-Th |
b |
|||
|
65
|
76 |
76 |
400 |
40 |
160
|
130
|
4-M12
|
16
|
185 |
145 |
4-M16
|
20
|
|
80
|
89
|
89
|
190
|
150
|
4-M16
|
18
|
200 |
160 |
8-M16
|
22
|
||
|
100
|
114
|
114
|
210
|
170
|
220 |
180 |
24
|
|||||
|
125
|
140
|
140
|
240
|
200
|
8-M16
|
20
|
250 |
210 |
26
|
|||
|
150
|
168
|
168
|
265
|
225
|
285 |
240 |
8-M20
|
|||||
|
200
|
219
|
219
|
320
|
280
|
22
|
340 |
295 |
28
|
||||
|
250
|
273
|
273
|
375
|
335
|
12-M16
|
24
|
395 |
350 |
12-M20
|
|||
|
300
|
325
|
325
|
420 |
50 |
440
|
395
|
12-M20
|
24
|
445 |
400 |
12-M20
|
28
|
|
350
|
377
|
377
|
490
|
445
|
26
|
505 |
460 |
16-M20
|
30
|
|||
|
400
|
426
|
426
|
540
|
495
|
16-M20
|
28
|
565 |
515 |
16-M24
|
32
|
||
|
450
|
480
|
480
|
595
|
550
|
615 |
565 |
20-M24
|
32
|
||||
|
500
|
530
|
530
|
645
|
600
|
20-M20
|
30
|
670 |
620 |
34
|
|||
|
600
|
630
|
630
|
440 |
755
|
705
|
20-M24
|
780 |
725 |
20-M27
|
36
|
||
|
700
|
720
|
720
|
860
|
810
|
24-M24
|
32
|
895 |
840 |
24-M27
|
40
|
||
|
800
|
820
|
826
|
600 |
60 |
975
|
920
|
24-M27
|
34
|
1015 |
950 |
24-M30
|
44
|
|
900
|
920
|
926
|
1075
|
1020
|
24-M27
|
36
|
1115 |
1050 |
28-M30
|
46
|
||
|
1000
|
1020
|
1026
|
1175
|
1120
|
28-M27
|
1230 |
1160 |
28-M33
|
50
|
|||
|
1200
|
1220
|
1226
|
620 |
1405
|
1340
|
32-M30
|
40
|
1455 |
1380 |
32-M36
|
56
|
|
|
1400
|
1420
|
1428
|
1630
|
1560
|
36-M33
|
44
|
1675 |
1590 |
36-M39
|
62
|
||
|
1600
|
1620
|
1628
|
630 |
1830
|
1760
|
40-M33
|
48
|
1915 |
1820 |
40-M4
|
68
|
|
|
1800
|
1820
|
1828
|
2045
|
1970
|
44-M36
|
50
|
2115 |
2020 |
44-M45
|
70
|
||
|
2000
|
2020
|
2030
|
650 |
2265
|
2180
|
48-M39
|
54
|
2325 |
2230 |
48-M45
|
74
|
|
|
2200
|
2220
|
2230
|
2475
|
2390
|
52-M39
|
60
|
2550 |
2440 |
52-M52
|
80
|
||
|
2400
|
2420
|
2430
|
2685
|
2600
|
56-M39
|
62
|
2760 |
2650 |
56-M52
|
82
|
||
|
2600
|
2620
|
2630
|
750 |
80 |
2905
|
2810
|
60-M45
|
64
|
2960 |
2850 |
60-M52
|
88
|
|
2800
|
2820
|
2830
|
3115
|
3020
|
64-M45
|
68
|
3480 |
3070 |
64-M52
|
94
|
||
|
3000
|
3020
|
3030
|
3315
|
3220
|
68-M45
|
70
|
3405 |
3290 |
68-M56
|
|
||
