


¹¦ÄܽéÉÜ£º
Ë«·¨À¼ËÉÌ×´«Á¦½ÓÍ·£¬ÐͺÅVSSJAF£¨1999±ê×¼£©ÐÍ£¬ÓÉ·¨À¼Ê½ËÉÌ×ÉìËõ½ÓÍ·ºÍ¶Ì¹Ü·¨À¼¡¢´«Á¦Âݸ˵ȹ¹¼þ×é³É¡£ËüÄÜ´«µÝ±»Á¬½Ó¼þµÄѹÁ¦ºÍÍÆÁ¦£¨Ã¤°åÁ¦£©ºÍ²¹³¥¹Ü·°²×°Îó²î£¬²»ÄÜÎüÊÕÖáÏòÎ»ÒÆ£¬Ö÷ÒªÓÃÓÚÓë±Ã¡¢·§Ãŵȸ½¼þµÄËÉÌ×Á¬½Ó¡£
Óŵ㣺°²×°¼òµ¥µ±±ã¡¢·½±ã·§ÃŰ²×°¡£
ÌØµã£ºË«·¨À¼Á¬½Ó·½Ê½¡£
VSSJAFC¿É²ðʽ˫·¨À¼ËÉÌ×´«Á¦½ÓÍ·ÊÊÓ÷¶Î§£º
VSSJAFC¿É²ðʽ˫·¨À¼ËÉÌ×´«Á¦½ÓÍ·ÊÊÓÃÓÚÊäËͺ£Ë®¡¢µË®¡¢ÀäÈÈË®¡¢ÒûÓÃË®¡¢Éú»îÎÛË®¡¢ÔÓÍ¡¢È¼ÓÍ¡¢Èó»¬ÓÍ¡¢³ÉÆ·ÓÍ¡¢¿ÕÆø¡¢ÃºÆø¡¢Î¶Ȳ»¸ßÓÚ250¶ÈµÄÕôÆûºÍ¿ÅÁ£·Û×´µÈ½éÖÊ¡£
VSSJAFC¿É²ðʽ˫·¨À¼ËÉÌ×´«Á¦½ÓÍ·ÐÔÄÜÌØµã£º
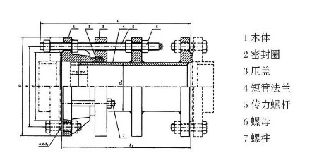
¿É²ðʽ˫·¨À¼ËÉÌ×´«Á¦½ÓÍ·ÊÇÔÚ·¨À¼ËÉÌײ¹³¥½ÓÍ·µÄ»ù´¡ÉÏÔöÉè·¨À¼¶Ì¹Ü¼°´«Á¦Âݸ˶ø³É£¬´ÎÀàÐ͵IJ¹³¥½ÓÍ·ÓëËÉÌײ¹³¥½ÓÍ·ºÍËÉÌ×ÏÞλ²¹³¥½ÓÍ·²»Í¬µÄÊÇËüµÄ²¹³¥Á¿ÊÇÖ¸ÔÚ°²×°¼°²ðж¹ý³ÌÖеĵ÷½ÚÁ¿£¬Ò»µ©½«ËùÓеÄÂÝĸš½ô£¬ËüÊǸÕÐÔÁ¬½ÓµÄ£¬¿ÉÒÔ´«µÝÖáÐÄÁ¦£¬´Ó¶ø±£»¤·§ÃÅ¡¢±ÃµÈÉ豸¡£
¹¦ÄܽéÉÜ£º
Ë«·¨À¼ËÉÌ×´«Á¦½ÓÍ·£¬ÐͺÅVSSJAF£¨1999±ê×¼£©ÐÍ£¬ÓÉ·¨À¼Ê½ËÉÌ×ÉìËõ½ÓÍ·ºÍ¶Ì¹Ü·¨À¼¡¢´«Á¦Âݸ˵ȹ¹¼þ×é³É¡£ËüÄÜ´«µÝ±»Á¬½Ó¼þµÄѹÁ¦ºÍÍÆÁ¦£¨Ã¤°åÁ¦£©ºÍ²¹³¥¹Ü·°²×°Îó²î£¬²»ÄÜÎüÊÕÖáÏòÎ»ÒÆ£¬Ö÷ÒªÓÃÓÚÓë±Ã¡¢·§Ãŵȸ½¼þµÄËÉÌ×Á¬½Ó¡£
Óŵ㣺°²×°¼òµ¥µ±±ã¡¢·½±ã·§ÃŰ²×°¡£
ÌØµã£ºË«·¨À¼Á¬½Ó·½Ê½¡£
VSSJAFC¿É²ðʽ˫·¨À¼ËÉÌ×´«Á¦½ÓÍ·°²×°¼òҪ˵Ã÷£º
VSSJAFC¿É²ðʽ˫·¨À¼ËÉÌ×´«Á¦½ÓÍ·Óë·¨À¼Á¬½ÓµÄ¹Ü·ÖУ¬°²×°Ê±µ÷½Ú²úÆ·Á½¶ËÓë·¨À¼µÄ°²×°³¤¶È£¬¶Ô½ÇÒÀ´Î¾ùÔÈÅ¡½ôѹ¸ÇÂÝ˨£¬Ê¹Æä³ÉΪһ¸öÕûÌ壬²¢ÓÐÒ»¶¨µÄÎ»ÒÆÁ¿£¬·½±ã°²×°Î¬ÐÞʱ£¬¸ù¾ÝÏÖ³¡³ß´ç½øÐе÷Õû¡£ÔÚ¹¤×÷ʱ¿ÉÒÔ°ÑÖáÏòÍÆÁ¦´«µÝÖÁÕý¸ö¹ÜµÀ¡£
¿É²ðʽ˫·¨À¼ËÉÌ×´«Á¦½ÓÍ·µÄ²ÄÖÊ£ºÖ÷ÒªÓÐQ235̼¸Ö¡¢²»Ðâ¸Ö¡¢Öý¸Ö¡¢ÇòÄ«ÖýÌúµÈ¡£²»Í¬µÄÓÃ;ѡÓò»Í¬µÄ²ÄÖʺÍÐͺš£
¼¼Êõ²ÎÊý£º
| ³ÆÍ¨¾¶DN |
¹Ü×ÓÍâ¾¶ Dw |
ÍâÐγߴç |
·¨ À¼ Á¬ ½Ó ³ß ´ç |
||||||||
|
L |
¡÷L |
0.6MPa |
1.0MPa |
||||||||
|
D |
D1 |
n-Th |
b |
D |
D1 |
n-Th |
b |
||||
|
65 |
76 |
200 | 40 | 160 | 130 | 4-M12 | 16 | 185 | 145 | 4-M16 | 20 |
|
80 |
89 | 190 | 150 | 4-M16 | 18 | 200 | 160 | 8-M16 | 22 | ||
|
100 |
114 |
210 |
170 |
220 |
180 |
24 |
|||||
|
125 |
140 |
240 |
200 |
8-M16 |
20 |
250 |
210 |
26 |
|||
|
150 |
168 |
265 |
225 |
285 |
240 |
8-M20 |
|||||
|
200 |
219 |
320 |
280 |
22 |
340 |
295 |
28 |
||||
|
250 |
273 |
375 |
335 |
12-M16 |
24 |
395 |
350 |
12-M20 |
|||
|
300 |
325 |
220 |
50 |
440 |
395 |
12-M20 |
24 |
445 |
400 |
12-M20 |
28 |
|
350 |
377 | 490 | 445 | 26 | 505 | 460 | 16-M20 | 30 | |||
|
400 |
426 |
540 |
495 |
16-M20 |
28 |
565 |
515 |
16-M24 |
32 |
||
|
450 |
480 |
595 |
550 |
615 |
565 |
20-M24 |
32 |
||||
|
500 |
530 |
645 |
600 |
20-M20 |
30 |
670 |
620 |
34 |
|||
|
600 |
630 |
240 |
755 |
705 |
20-M24 |
780 |
725 |
20-M27 |
36 |
||
|
700 |
720 |
860 |
810 |
24-M24 |
32 |
895 |
840 |
24-M27 |
40 |
||
|
800 |
820 |
350 |
60 |
975 |
920 |
24-M27 |
34 |
1015 |
950 |
24-M30 |
44 |
|
900 |
920 |
1075 |
1020 |
24-M27 |
36 |
1115 |
1050 |
28-M30 |
46 |
||
|
1000 |
1020 |
1175 |
1120 |
28-M27 |
1230 |
1160 |
28-M33 |
50 |
|||
|
1200 |
1220 |
370 |
1405 |
1340 |
32-M30 |
40 |
1455 |
1380 |
32-M36 |
56 |
|
|
1400 |
1420 |
1630 |
1560 |
36-M33 |
44 |
1675 |
1590 |
36-M39 |
62 |
||
|
1600 |
1620 |
380 |
1830 |
1760 |
40-M33 |
48 |
1915 |
1820 |
40-M4 |
68 |
|
|
1800 |
1820 |
2045 |
1970 |
44-M36 |
50 |
2115 |
2020 |
44-M45 |
70 |
||
|
2000 |
2020 |
400 |
2265 |
2180 |
48-M39 |
54 |
2325 |
2230 |
48-M45 |
74 |
|
|
2200 |
2220 |
2475 |
2390 |
52-M39 |
60 |
2550 |
2440 |
52-M52 |
80 |
||
|
2400 |
2420 |
2685 |
2600 |
56-M39 |
62 |
2760 |
2650 |
56-M52 |
82 |
||
|
2600 |
2620 |
450 |
80 |
2905 |
2810 |
60-M45 |
64 |
2960 |
2850 |
60-M52 |
88 |
|
2800 |
2820 |
3115 |
3020 |
64-M45 |
68 |
3480 |
3070 |
64-M52 |
94 |
||
|
3000 |
3020 |
3315 |
3220 |
68-M45 |
70 |
3405 |
3290 |
68-M56 |
100 |
||
|
3200 |
3220 |
3525 |
3430 |
72-M45 |
76 |
|
|||||
